614 Village Park Drive, Powell, OH 43065 (MLS # 225040254)
Brought to you by New Albany Realty
|
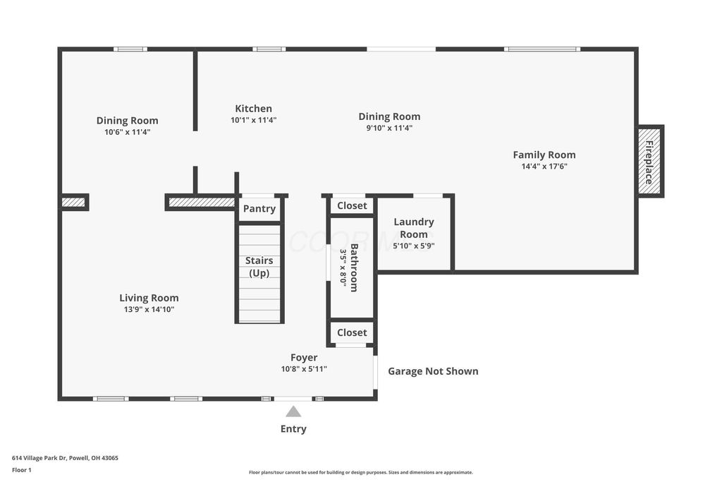
Welcome to this tastefully updated, turn-key home, located within the boundaries for Olentangy Liberty High School. The inviting first floor showcases a generous living room, which flows into a dining room or office space. The kitchen offers new quartz counter tops, a butcher block island, brand new appliances and new plumbing fixtures. The great room features a vaulted ceiling, a masonry fireplace, and new flooring. Also on the first floor you will find a convenient laundry room with a washer and dryer, as well as access to the large deck. The second floor offers an impressive owners' suite with a vaulted ceiling and a totally updated bathroom with double bowl vanity, new flooring, updated light fixtures, and restyled shower. In addition, there are three bedrooms with new carpet and paint. There is also an updated full bathroom with new flooring, new counter top, new light fixture, and new flooring. The exterior delivers a generous lot with large deck and a newly poured concrete driveway. The roof was replaced in 2020, hot water tank in 2024, HVAC in 2020. Come see all this home has to offer at the open house Saturday 10/25 from 1:00-4-00.
| DAYS ON MARKET | 4 | LAST UPDATED | 10/25/2025 |
|---|---|---|---|
| TRACT | Powell Place | YEAR BUILT | 2000 |
| GARAGE SPACES | 2.0 | COUNTY | Delaware |
| STATUS | Active | PROPERTY TYPE(S) | Single Family |
| ADDITIONAL DETAILS | |
| AIR | Central Air |
|---|---|
| AIR CONDITIONING | Yes |
| APPLIANCES | Dishwasher |
| BASEMENT | Partial, Yes |
| CONSTRUCTION | Stucco |
| FIREPLACE | Yes |
| GARAGE | Yes |
| HEAT | Forced Air, Natural Gas |
| INTERIOR | Eat-in Kitchen |
| LOT | 0.36 acre(s) |
| PARKING | Garage Door Opener, Attached, Garage |
| SEWER | Public Sewer |
| STORIES | 2 |
| STYLE | Traditional |
| SUBDIVISION | Powell Place |
| TAXES | 6806 |
| WATER | Public |
MORTGAGE CALCULATOR
TOTAL MONTHLY PAYMENT
0
P
I
*Estimate only
| SATELLITE VIEW |
| / | |
We respect your online privacy and will never spam you. By submitting this form with your telephone number
you are consenting for Cindy
Snider to contact you even if your name is on a Federal or State
"Do not call List".
Listing provided by Coldwell Banker Realty, Margaret M Fenters
Listing information is deemed reliable, but not guaranteed.
This IDX solution is (c) Diverse Solutions 2025.