1433 Venice Drive, Columbus, OH 43207 (MLS # 225045951)
Brought to you by New Albany Realty
|
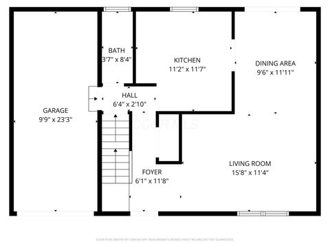
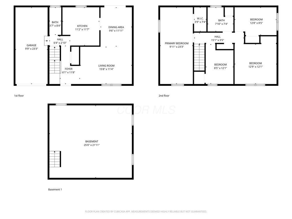
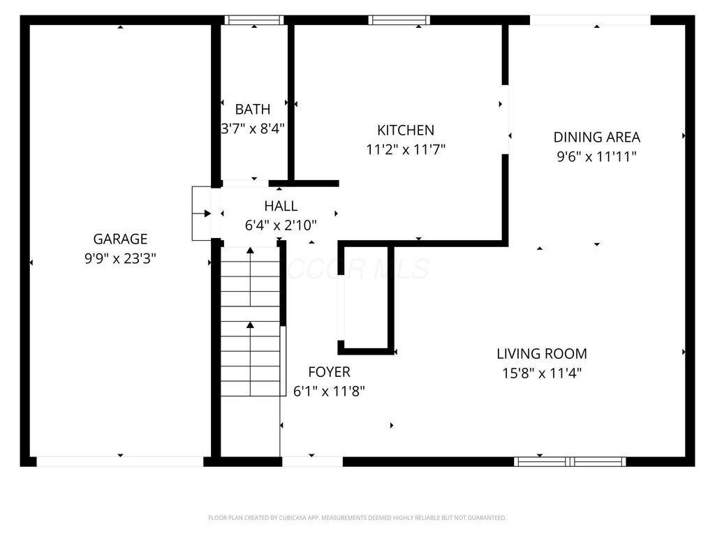
Spacious 4-bedroom, 1.5-bath single-family home featuring an inviting, open floorplan designed for comfortable living and entertaining. The home offers generous living areas filled with natural light, well-sized bedrooms, and a functional layout. Step outside to a large backyard"”perfect for gatherings, gardening, or future outdoor enhancements. A wonderful opportunity to enjoy space, flexibility, and everyday comfort.
| DAYS ON MARKET | 1 | LAST UPDATED | 12/19/2025 |
|---|---|---|---|
| YEAR BUILT | 1964 | GARAGE SPACES | 1.0 |
| COUNTY | Franklin | STATUS | Active |
| PROPERTY TYPE(S) | Single Family |
| ADDITIONAL DETAILS | |
| AIR | Central Air |
|---|---|
| AIR CONDITIONING | Yes |
| APPLIANCES | Electric Range |
| BASEMENT | Full, Yes |
| CONSTRUCTION | Brick |
| EXTERIOR | Other |
| GARAGE | Yes |
| HEAT | Electric |
| LOT | 6098 sq ft |
| PARKING | Attached, Garage |
| SEWER | Public Sewer |
| STORIES | 2 |
| STYLE | Traditional |
| TAXES | 2351.44 |
| WATER | Public |
MORTGAGE CALCULATOR
TOTAL MONTHLY PAYMENT
0
P
I
*Estimate only
| SATELLITE VIEW |
| / | |
We respect your online privacy and will never spam you. By submitting this form with your telephone number
you are consenting for Cindy
Snider to contact you even if your name is on a Federal or State
"Do not call List".
Listing provided by Trelora Realty, Inc, Matthew Tyler Kalogeras
Listing information is deemed reliable, but not guaranteed.
This IDX solution is (c) Diverse Solutions 2025.