1766 Thrailkill Road, Grove City, OH 43123 (MLS # 226000399)
Brought to you by New Albany Realty
|
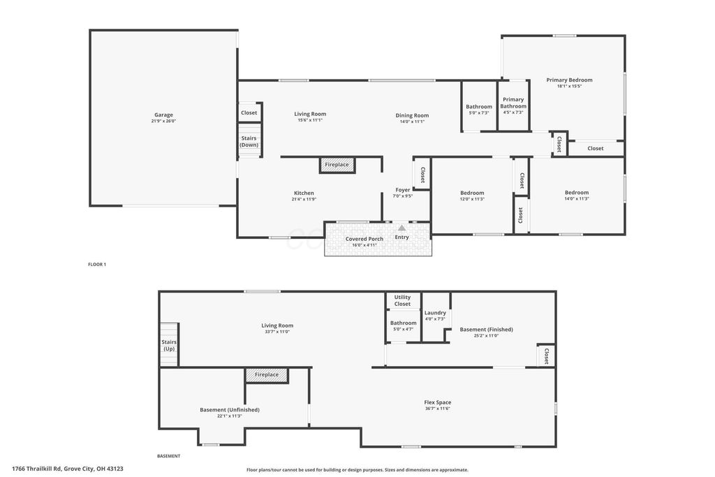
Experience the rare opportunity to enjoy country-style space within the city, offering exceptional flexibility for both everyday living and hobbies. Whether you need room to spread out or space for vehicles, equipment, or projects, this property delivers unmatched versatility. The home offers over 2,700 square feet of finished living space, thoughtfully designed for comfort and entertaining. Highlights include a cozy living room with a wood-burning fireplace, a primary bedroom with walk-out access to a large concrete patio, and a spacious lower-level rec room complete with a wet bar, fireplace, and plenty of room for a pool table. The kitchen is beautifully appointed with custom oak cabinetry, granite countertops, and stainless appliances. Additional features include gleaming bamboo hardwood floors, updated bathrooms, and a large laundry room with ample space to spread out. The heated attached garage provides abundant storage and year-round functionality. A hot water recirculation system ensures consistent and readily available hot water. Numerous major updates have already been completed, offering peace of mind for the next owner. Improvements include a new A/C, front entry door, asphalt driveway, and all-new water lines, along with replacement windows and gutters, a well installed in 2020, and a water filtration system. A standout feature is the 44x56 three-bay barn, fully insulated and heated by both a gas furnace and wood-burning stove. With two 14-foot doors and openers, it's ideal for storing large boats, RVs, or recreational toys. A zoning variance allows the option to store multiple construction vehicles, making this an exceptional opportunity for contractors or business owners.
| DAYS ON MARKET | 4 | LAST UPDATED | 1/8/2026 |
|---|---|---|---|
| YEAR BUILT | 1965 | GARAGE SPACES | 8.0 |
| COUNTY | Franklin | STATUS | Active |
| PROPERTY TYPE(S) | Single Family |
| ADDITIONAL DETAILS | |
| AIR | Central Air, Whole House Fan |
|---|---|
| AIR CONDITIONING | Yes |
| APPLIANCES | Dishwasher, Electric Range, Electric Water Heater, Microwave |
| BASEMENT | Full, Yes |
| CONSTRUCTION | Brick |
| FIREPLACE | Yes |
| GARAGE | Yes |
| HEAT | Oil |
| INTERIOR | Eat-in Kitchen, Master Downstairs |
| LOT | 1.72 acre(s) |
| PARKING | Heated Garage, Detached, Attached, Garage |
| SEWER | Private Sewer |
| STORIES | 1 |
| STYLE | Ranch |
| TAXES | 5304 |
| WATER | Private |
MORTGAGE CALCULATOR
TOTAL MONTHLY PAYMENT
0
P
I
*Estimate only
| SATELLITE VIEW |
| / | |
We respect your online privacy and will never spam you. By submitting this form with your telephone number
you are consenting for Cindy
Snider to contact you even if your name is on a Federal or State
"Do not call List".
Listing provided by Century 21 Excellence Realty, Mick Groom
Listing information is deemed reliable, but not guaranteed.
This IDX solution is (c) Diverse Solutions 2026.