24 Erin Hills Road, Commercial Point, OH 43116 (MLS # 226002791)

Brought to you by New Albany Realty
Save to Favorites
Print
Share
PRICE $455,000 dsIDX morgage calculator
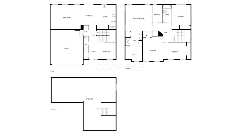
BEDS 4
BATHS 3
HOME SIZE 2,399 sqft
LOT SIZE 6,534 sqft

Welcome to 24 Erin Hills Rd, a home that has been tastefully updated to meet your needs. The fresh interior paint provides a clean and modern feel, complemented by new flooring throughout the home. The kitchen is a chef's dream with an accent backsplash, new appliances, and all stainless steel appliances. A kitchen island provides additional prep space. The primary bedroom boasts a walk-in closet, and the primary bathroom features double sinks for convenience. The home also benefits from a new HVAC system and a new roof, ensuring comfort and peace of mind. Outside, a patio provides a perfect spot for relaxation. This home is a must-see for those seeking a move-in-ready property.Included 100-Day Home Warranty with buyer activatio

DAYS ON MARKET 8 LAST UPDATED 1/29/2026
YEAR BUILT 2022 GARAGE SPACES 2.0
COUNTY Pickaway STATUS Active
PROPERTY TYPE(S) Single Family


ADDITIONAL DETAILS
AIR Central Air
AIR CONDITIONING Yes
BASEMENT Concrete, Yes
GARAGE Yes
HOA DUES 400|Semi-Annual
LOT 6534 sq ft
PARKING Attached, Garage
SEWER Public Sewer
STORIES 2
TAXES 5666
WATER Public
MORTGAGE CALCULATOR
   

TOTAL MONTHLY PAYMENT

0
P
I
*Estimate only

SATELLITE VIEW



 
CONTACT US ABOUT 24 ERIN HILLS ROAD
 / 
We respect your online privacy and will never spam you. By submitting this form with your telephone number you are consenting for Cindy Snider to contact you even if your name is on a Federal or State "Do not call List".

Listing provided by Opendoor Brokerage LLC, Daniel J Beirne
Listing information is deemed reliable, but not guaranteed.

This IDX solution is (c) Diverse Solutions 2026.